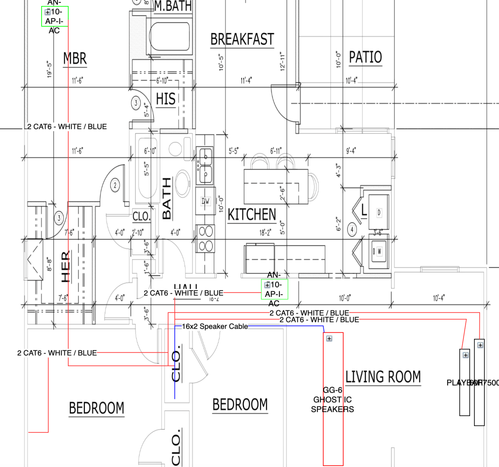
Plan Drawing
A Plan Drawing is great for building a pre-wire or rough-in visual. Here is an example of a basic plan drawing in Design & Engineering.
Line Drawing
A Line Drawing is great for showing simple connections between items. Here is an example of line drawing in Design & Engineering.

Elevation Drawing
An Elevation Drawing is great for building out racks or network panels. Items are true to size and will snap into the rack or panel. Here is an example of a rack that is built in the elevation mode.
Schematic Drawing
A Schematic Drawing is great for showing detailed connections between items. Here is an example of a basic schematic drawing for network equipment. It shows all of the detailed connection points that were added in the Engineering tab for each item.
Last modified:
7 Dec 2022


